Question: Could you post detailed photos to your website of the wooden bezels you fitted to your ports to accept Plexiglas covers? Did you do the same for your hatches? We are losing the battle against condensation in Florida’s current cold snap. Thanks!
Answer: When we were battling condensation during our two winters in arctic Norway, we used plastic sheeting and weather-stripping to kludge a cheap and cheerful double glazing over the ports and hatches. It wasn’t beautiful but it worked quite well.
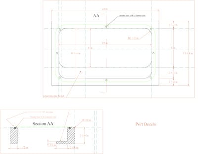
However, the bezels that we designed and had built to surround Morgan’s Cloud’s custom ports so that we can attach Plexiglas covers to them in the winter, do a much better job and look a lot better too. Now we’re contemplating how to deal with our large custom hatches…


Can’t seem to access the PDF…..
Hi MickC,
Sorry about that. I’m not sure what is wrong and I don’t have all our files with us at the moment, but I will make a note to fix it when I do.
We have bronze ports on “Moonshadow” and they sweat quite a lot when the outside temp falls below 32 F or so. (We are currently wintering in North Carolina) For years we just put up with it wiping them down frequently and watching the stains on the woodwork build up. One winter, on a whim, I bought some indoor window plastic designed for homeowners at a local hardware store. Usually a kit, it includes some double sided tape and some very thin plastic sheeting. “Storm King” is a common manufacturer. Contrary to the instructions I ran the double stick tape around the ports on the outside of the cabin trunk about an inch beyond the bronze trim ring. I leave a little gap in the tape at the bottom to allow water that might get in to drain. I then stretch the plastic over the port and stick it to the tape. Doing 9 ports takes about 2 hours tops. I leave the galley port alone so I can open it while cooking.
Surprisingly I have found this to be very effective. The glass ports show little if any condensation with temps in the 20’s and the frames only a trace of condensation. I even think the cabin stays a bit warmer.
I also do the hatches but apply the plastic on the inside. They usually stay condensation free in all temps.
I should add that I have diesel heat that adds no moisture to the air and I am careful about ventilation while cooking. We also do not do much sailing in these temps. The plastic stands up to normal winds, rain, and snow but would not take a wave!
I have found this cheap and effective in mid latitudes and would certainly help in Florida. And when springtime comes it takes only a few moments to take it all down.
Hi Ed,
Great information, thank you. An improvement on the system we used in Norway, although very like it.